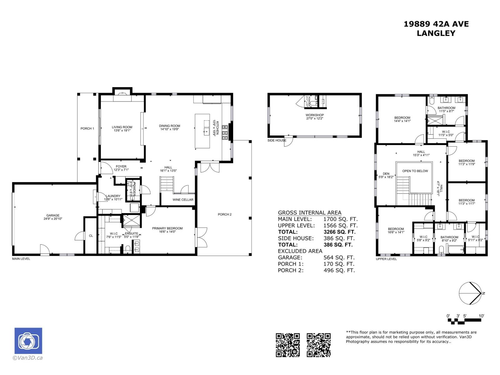
Located on one of Brookswood's best streets, this 3266 sg.f custom-built 2-storey home with a bonus 386 sq.ft detached studio offers luxury living in a peaceful setting. The chef's kitchen features a Thor range, Bosch coffee maker, Silestone counters, and champagne gold fixtures. The main floor primary suite includes a spa-style ensuite, walk-in closet, and access to a stunning backyard with a covered patio, gas fireplace, and hot tub. Upstairs offers 4 spacious bedrooms plus a study area. All set on a quiet, no-through road near Anderson Creek and just a short walk to Brookswood Village. This one is truly a rare find. The home has been fully custom built and completed in 2021 with a final inspection approval by the city of Langley, The foundation remained(EST 1975) (id:54441)
| MLS® Number | R3040621 |
| Property Type | Single Family |
| Parking Space Total | 9 |
| Bathroom Total | 4 |
| Bedrooms Total | 5 |
| Age | 4 Years |
| Architectural Style | 2 Level |
| Basement Development | Finished |
| Basement Features | Unknown |
| Basement Type | Crawl Space (finished) |
| Construction Style Attachment | Detached |
| Fireplace Present | Yes |
| Fireplace Total | 2 |
| Heating Type | Baseboard Heaters, Forced Air |
| Size Interior | 3266 Sqft |
| Type | House |
| Utility Water | Municipal Water |
| Garage | |
| Carport |
| Acreage | No |
| Size Irregular | 10950 |
| Size Total | 10950 Sqft |
| Size Total Text | 10950 Sqft |
| Natural Gas | Available |
https://www.realtor.ca/real-estate/28782570/19889-42a-avenue-langley
Contact us for more information
Rami Hanna
Personal Real Estate Corporation
(604) 581-8400
(604) 581-0495
www.suttonpremier.com/